セミオーダー住宅とは?
住宅には、完成した建物を購入する建売住宅と、1から設計していく注文住宅があります。セミオーダー住宅はその間に位置する住宅です。
特徴
価格が明確で資金計画が立てやすく、注文住宅よりもコストを下げられます。
大まかな間取りと仕様が決めてあるので、価格が明確で、また選択肢も限られるため、注文住宅よりもコストを抑えられます。
(建売住宅より、自分好みのお住まいにできます。)
特徴
完成までが注文住宅よりも早くできます。
仕様や設備は、いくつかのパターンから選ぶので、1から完成形を考えていく注文住宅よりも、短時間で住まいづくりを進めていけます。
特徴
安定した品質が確保されるお住まいになります。
実績のある決まった規格の建物になるので、品質のバラツキがなく、実際にお住まいいただいたお客様の声をフィードバックしていくので、1棟ごとにアップデートしていくお住まいです。
ウチダのセミオーダー住宅は、子育て世代の幅広いニーズを集約した新築企画住宅です
|
|
|
|
|
|
|
|
|
|
|
|
|
|
|
|
|
|
|
|
|
|
|
|
|
施工事例
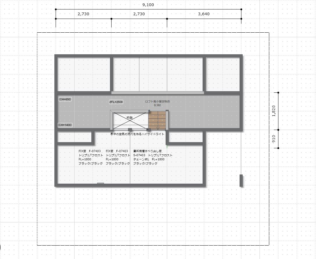
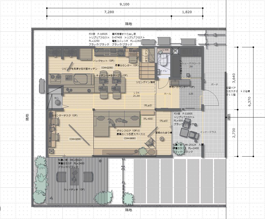
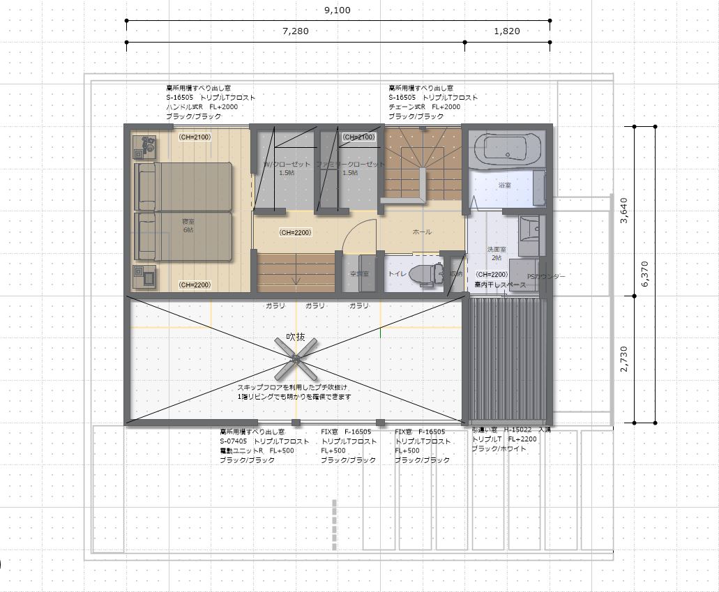
33坪 ZEH+全館空調のある長期優良住宅
まずは【ZEH+全館空調のある長期優良住宅】の動画をご覧ください。
ギャラリー
※各行政庁の指導によりプランが変わることがあります。
※1階水廻りプランもあります。
| 間取り/床面積 | 3LDK/1階:55.56㎡ 2階:55.56㎡ 延べ:111.1㎡(33.6坪) 小屋裏物置:14.9㎡ |
|---|
スペック
| 家の強度確認 | 家の強度確認には2つの方法があり、「ウチダの家」と「セミオーダーの家」はより家の強さを緻密に調べる構造計算を実施していますので安心です。 |
|---|---|
| 耐震性 | 住宅性能評価の最高等級建築基準法の1.5倍の強度 耐風等級も最高等級です。 (この基準を満たすと熊本地震のような繰り返しの地震にも耐えられ、家族と住まいを守ります。) |
| 断熱性 | 住宅性能評価の断熱等性能等級6 HEAT20 G2 (気密性とセットで、この基準を満たすと光熱費の少ない、冬はあたたかく、夏は涼しい家になります。) |
| 気密性 | C値:1.0cm²/㎡以下(断熱性とセットで、この基準を満たすと光熱費の少ない、冬はあたたかく、夏は涼しい家になります。) |
| 維持管理対策性 | 住宅性能評価の最高等級 (この基準を満たすと設備配管等の維持管理がしやすい家になります。) |
| 劣化対策性 | 住宅性能評価の最高等級 (この基準を満たすと構造躯体が長持ちする家になります。) |
| 耐火性 | 住宅金融支援機構が定める省令準耐火構造で、準耐火構造に準ずる防火性能を持つ構造 特徴その1:隣家などから火をもらわない(外部からの延焼防止) 特徴その2:火災が発生しても一定時間部屋から火を出さない(各室防火) 特徴その3:万が一部屋から火が出ても延焼を遅らせる(他室への延焼遅延) |
| 省エネ性 | 夏・冬共家庭用エアコン1台の全館空調住宅 (夏・冬共家庭用エアコン1台の稼働でよいので電気代が節約できます。) |
| 再エネ | 太陽光発電5.41kW+蓄電池9.8kWh搭載 (この設備を搭載すると、電気代とガソリン代もNETゼロの家になります。)※EV車の場合で、使用電力量によります。 |
| 60年長期保証システム | 安心の長期保証システム完備(お住まいのメンテナンス・維持管理も安心です。) |
| プラス デザイン性と高い品質 | フルハイトドアやアクセントクロス等で、おしゃれにデザインします! 工事はすべて自社施工。経験豊富な技術力のある大工さんや専門業者さんを自社でまとめ上げて工事を行います。 又、厳格な社内検査体制を実施。(外部のハウスインスペクターの先生にも検査をお願いしております。) |
各Specのご紹介
価格
| 建物坪数 | 33坪ベーシック標準スタイル |
|---|---|
| 価格の目安(税込) | お問い合わせください。
※屋外付帯設備工事を含みます。2023/03/01(※品質・性能向上のため、価格を変更することがあります。) ※設計料(請負工事価格の5%)はかかりません。 ※こどもエコすまい支援事業対応 ※東京ゼロエミ住宅(水準3)対応(太陽光発電・蓄電池共) |
























家の強度確認には2つの方法があり、「ウチダの家」と「セミオーダーの家」はより家の強さを緻密に調べる構造計算を実施していますので安心です。
住宅性能評価の最高等級






